2011 - Unifamiliar adosado (II)


Una vez presentado el proyecto de la constructora, expondré mi punto de vista. Primeramente, después de estudiar los planos, hice un primer informe sobre dudas en el diseño de los planos, las no coincidencias entre planta y sección,... para luego poder hacer una buena imagen en 3D. La vivienda a analizar era la D.

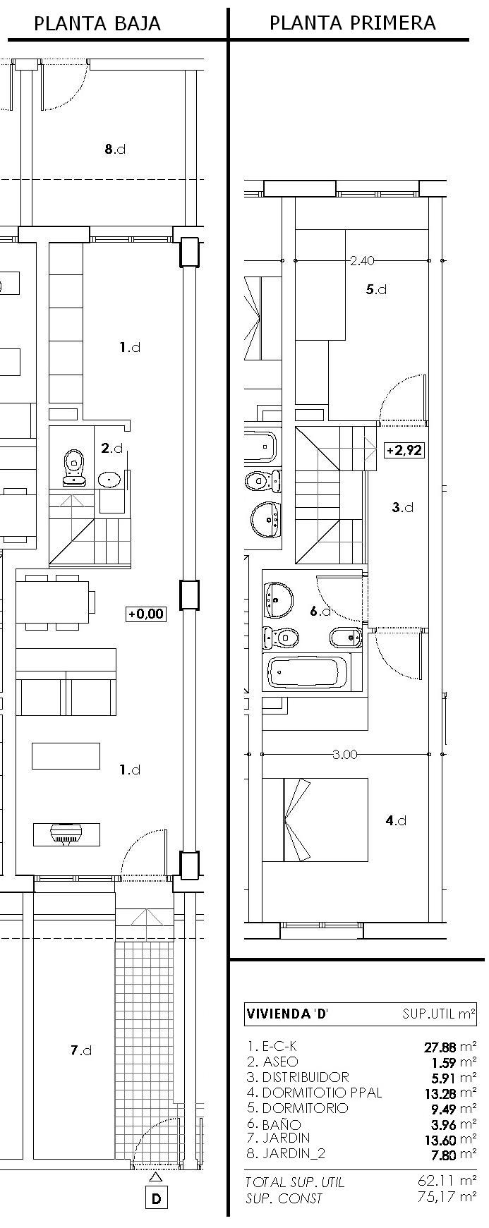
Esta imagen es una ampliación del plano de la vivienda:

adoGor9

El informe:

Pondría la mesa comedor en la entrada y el mueble de la tele en la pared de la escalera. El motivo del cambio es que para ver bien la TV, la fuente de luz que entraría por la ventana sería mayor y habría que hacer esfuerzo para ver la TV. Por lo que habría que tener, la mayoría de veces, la persiana bajada o cerrada con cortinas/estores...

Mientras, el comedor recibiría menos luz natural y habría que echar mano de la luz artificial, que no quita que no pueda ser usada, pero sería para dar un mayor uso a la luz natural.

La tabica de la escalera (altura de cada peldaño) es de 19.5 cm, siendo una medida cómoda de 16-18 cm.

Se podría poner puerta corredera en el salón, pero la pared engordaría 10-15 cm (siempre que se quiera poner la puerta embutida en la pared). Habría que estudiarlo en la cocina ya que las medidas están un poco justas para ser corredera.

El techo más bajo en el WC del aseo es de 1.50 m, siendo un techo abuhardillado.

Habría que estudiar las alturas del aseo porque (según lo visto en los planos) son algo raras.

Los supuestos pilares que hay en la cocina y en las dos habitaciones, son shunts (tubos de ventilación de los baños), es decir, la rejilla del baño.

No hay lógica en los pilares de la planta baja y de la planta de arriba. Poniendo los planos uno encima del otro, los pilares coinciden si lo ponemos para que coincidan, pero la forma del edificio varía.

La cubierta (el tejado) es plana, pero no es transitable. Las rayas del plano indican que la superficie de la cubierta tiene una inclinación (2-5% aprox.) que sirve para llevar el agua de lluvia a las tuberías de pluviales que están en la cornisa.

No hay lógica en el pequeño jardín del fondo con la imagen en 3D.

No hay lógica en el plano de sección con la fachada delantera y trasera en referencia a las ventanas de los dormitorios, ya que en la sección las ventanas están a media altura y en los alzados son enteras.

En el plano de sección no han dibujado todo y faltan rayas que debería de haber y no aparecen (p.ej. en el piso de arriba; el espacio de la escalera está vacío). Se puede apreciar que este plano de sección es uno general para todos, siendo uno de los tres que se accede por la cocina. Pero aun así, faltan rayas. Parece una minucia pero es vital para entender correctamente los planos.


Unas imágenes en 3D para poder entender los planos y adaptarlo a las necesidades que el cliente indica:

adoGor10 adoGor11 adoGor12 adoGor13 adoGor14 adoGor15 adoGor16 adoGor17 adoGor18 adoGor19 adoGor20 adoGor21 adoGor22 adoGor23 adoGor24 adoGor25 adoGor26 adoGor27 adoGor28 adoGor29

Desde mi punto de vista, la 2ª idea de salón (*) me parece la mejor opción. En este caso, se podría variar la posición del sofá y la mesa-comedor ya que la entrada de luz no interfiere con la TV.

Visualmente el espacio es más amplio, pero la distancia del sofá a la TV es inferior a los 3 m, lo que hace que para querer poner una TV de 50 pulgadas sería poca distancia.

Se podría decir que habría que adaptar los muebles a la casa, pero en este caso, la casa tendría que adaptarse a los muebles. Es decir, los clientes tenían sus ideas ya definidas (TV de 50", sofá chaise-longue, cuarto para la música, etc.). Pero estos no han sido los motivos principales de no comprar la casa.

Al final era un cúmulo de inconvenientes y estrecheces. Las alturas del aseo son incómodas, sólo hay un armario empotrado y pequeño, espacios abiertos entre salón, escalera y cocina -algo que les desagradaba a mis clientes-,...

Tampoco se sabe al 100% lo que yo he interpretado con los planos que eso sea lo que vaya a ser, ya que la casa no se ha construido.

En definitiva, la pareja siguió adelante en su búsqueda de vivienda rechazando ésta, ya que vivir día a día en ella no satisfacía todas sus necesidades.


*Nota: La leyenda de las fotos se puede leer pasando la flechita del ratón sobre ellas.