2011 - Unifamiliar adosado (I)


Continuando con la pareja del anterior proyecto, éstos encontraron una promoción de viviendas de futura construcción en Gorliz.

Anterior proyecto

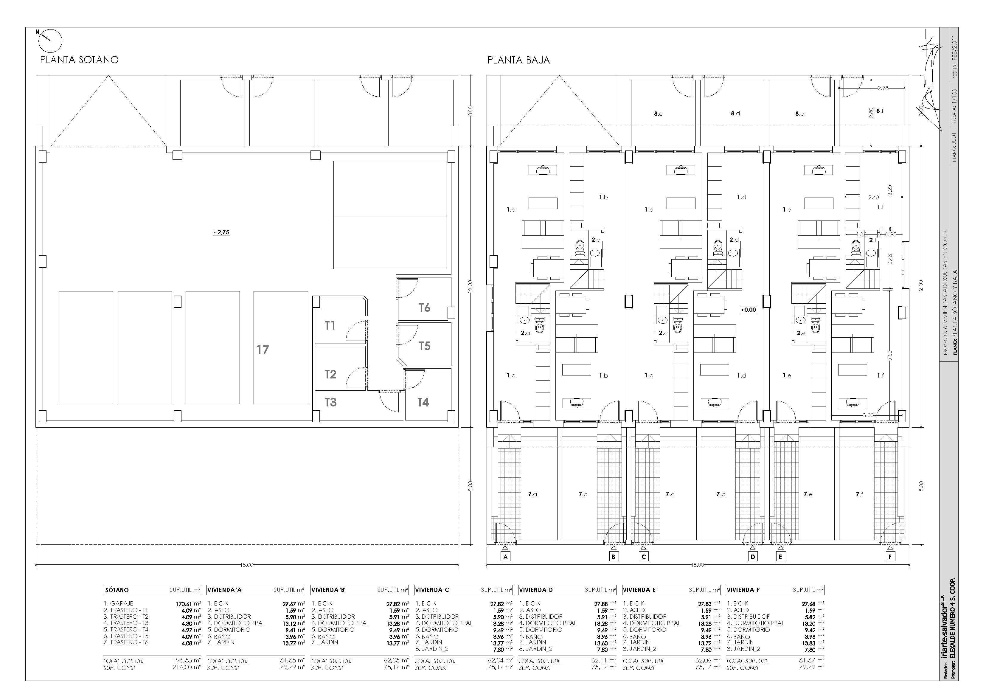
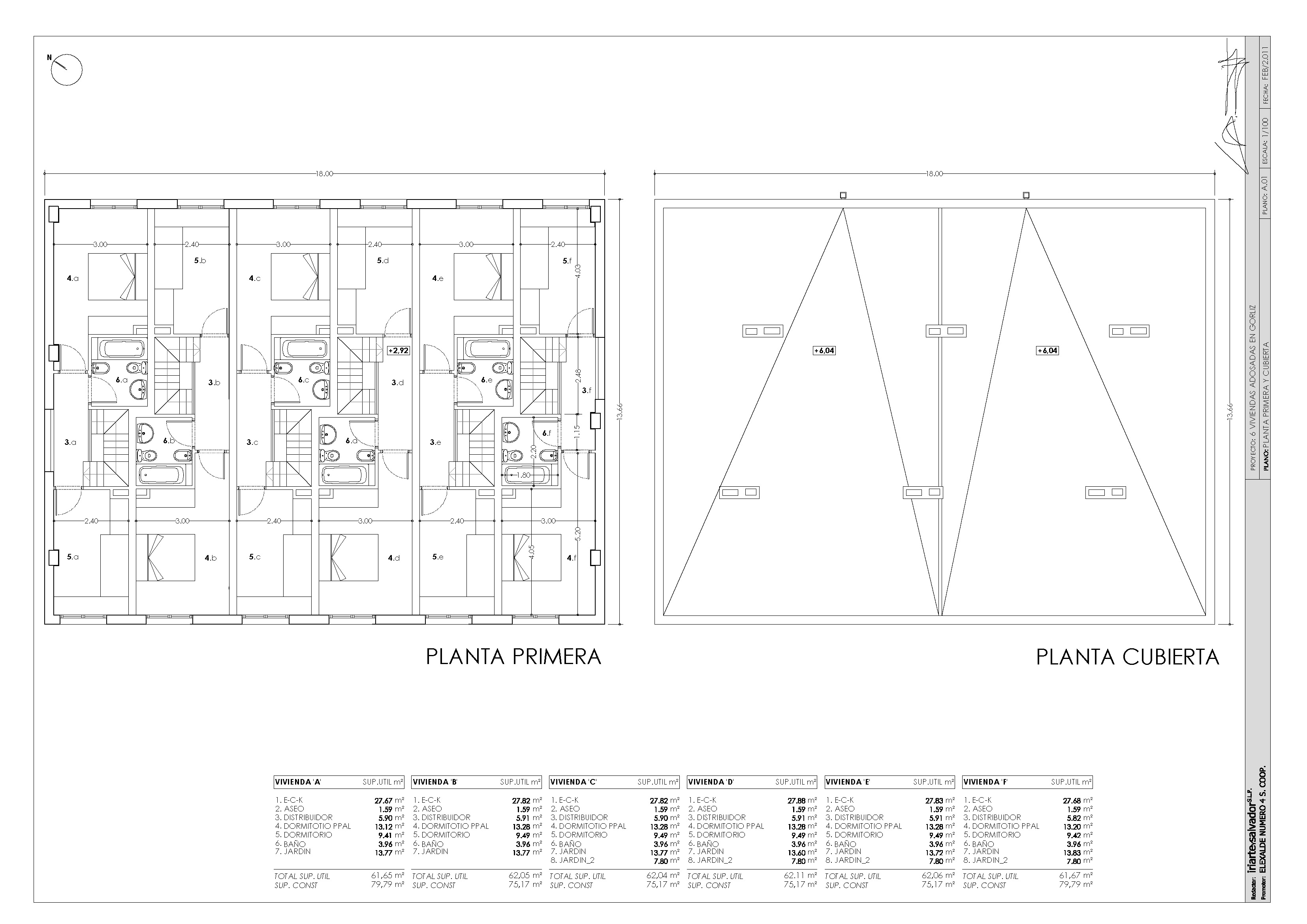
Se trata de 6 viviendas unifamiliares adosadas de aproximadamente 62 m2 cada una en una superficie de 360 m2.

Viviendas con jardín, salón-comedor, cocina y aseo en la planta baja. Y para la de arriba: dos dormitorios y un baño. Bajo las viviendas están la plaza de garaje y el trastero.

Los planos que pongo a continuación son de la constructora, que entrega a los interesados en comprar la vivienda:

adoGor1 adoGor2 adoGor3 adoGor4 adoGor5

Y unas imágenes en 3D, a modo de infografía, también realizadas por la constructora:

adoGor6 adoGor7 adoGor8