2011 - Txoko-Vivienda (IV)


La pareja no deseaba que fuera un loft o un espacio abierto sin paredes, debido a los pocos metros cuadrados y la escasa fuente de luz. Quería que cada espacio estuviera cerrado y tuviese su intimidad.

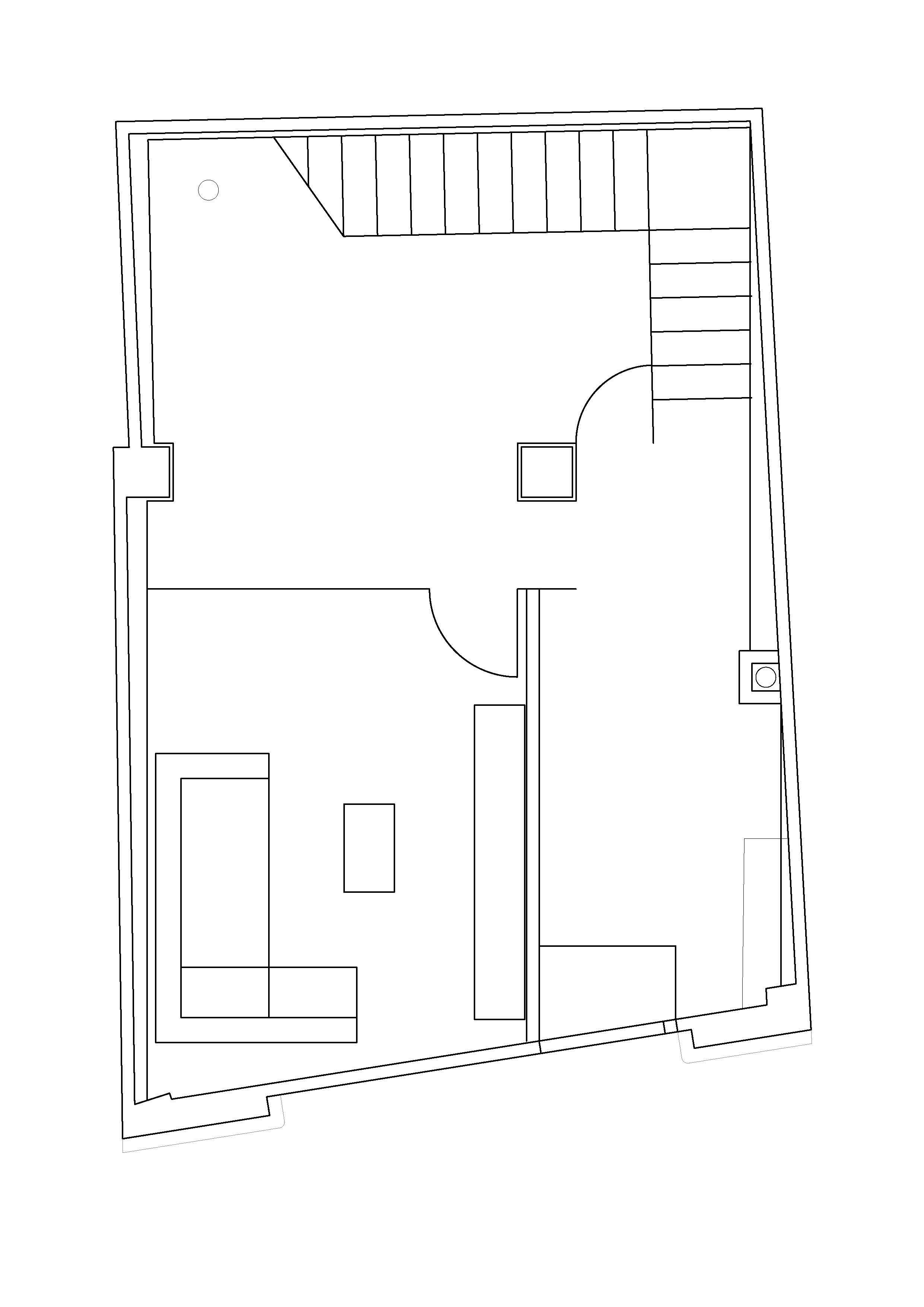
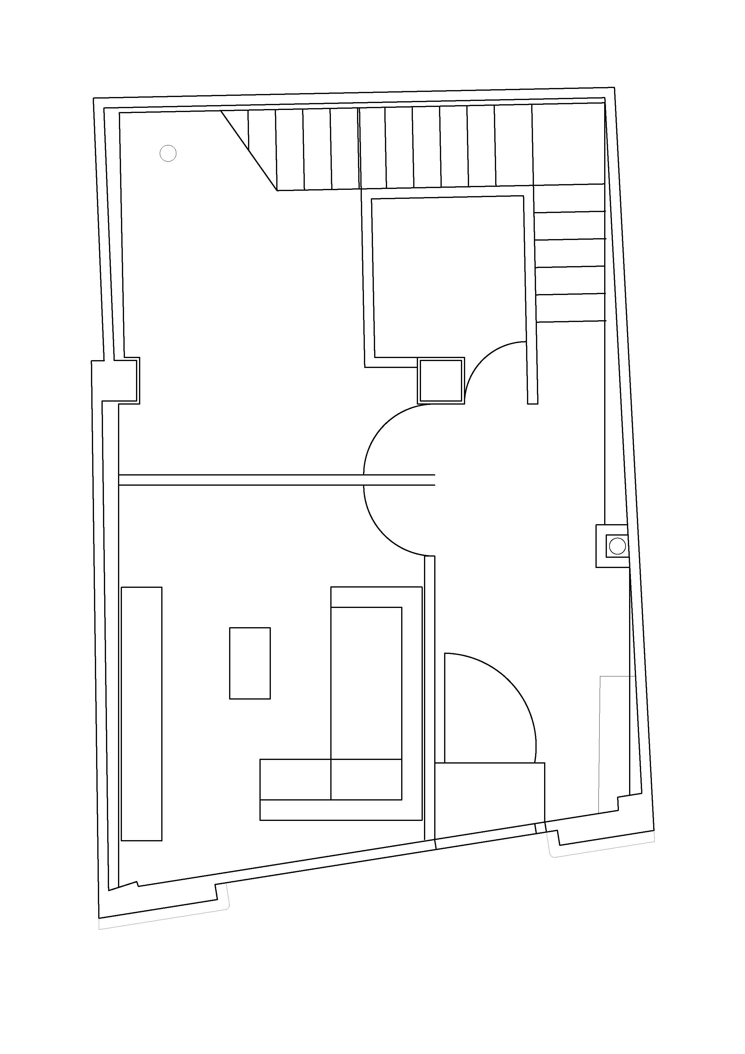
Surgieron muchas pegas, como por ejemplo, el pilar central. Éste es un inconveniente, ya que se encuentra prácticamente en el medio, dificultando de esta manera una buena distribución.

Aquí van unas propuestas de ideas, pero antes algunos planos:

txoGor29 txoGor30

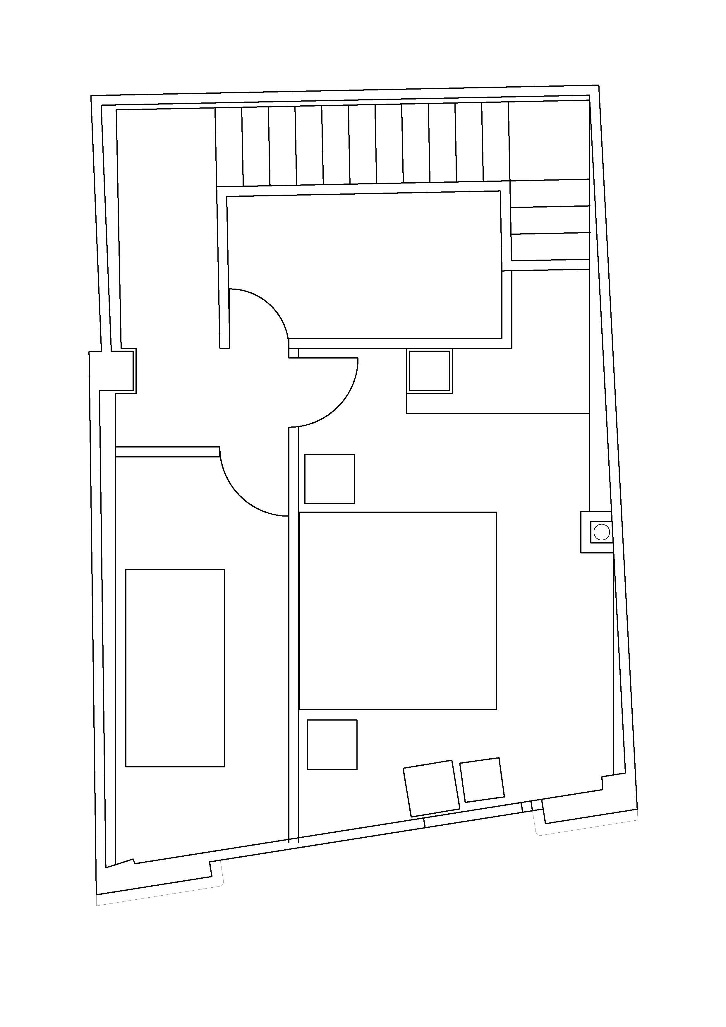
Ideas:

txoGor31 txoGor32

No querían ningún tipo de escalera de tipo caracol, etc. Deseaban una escalera amplia y firme. Busqué la opción de que la escalera estuviera cerca de la entrada, pegada a la pared. En el pasillo, entre el pilar central y la escalera, la distancia sería de 0,50 m (muy estrecho), por lo que probé a curvar la escalera. No gustó esa idea por lo que, después de buscar alguna otra solución, deseché la posibilidad de poner la escalera en la entrada.

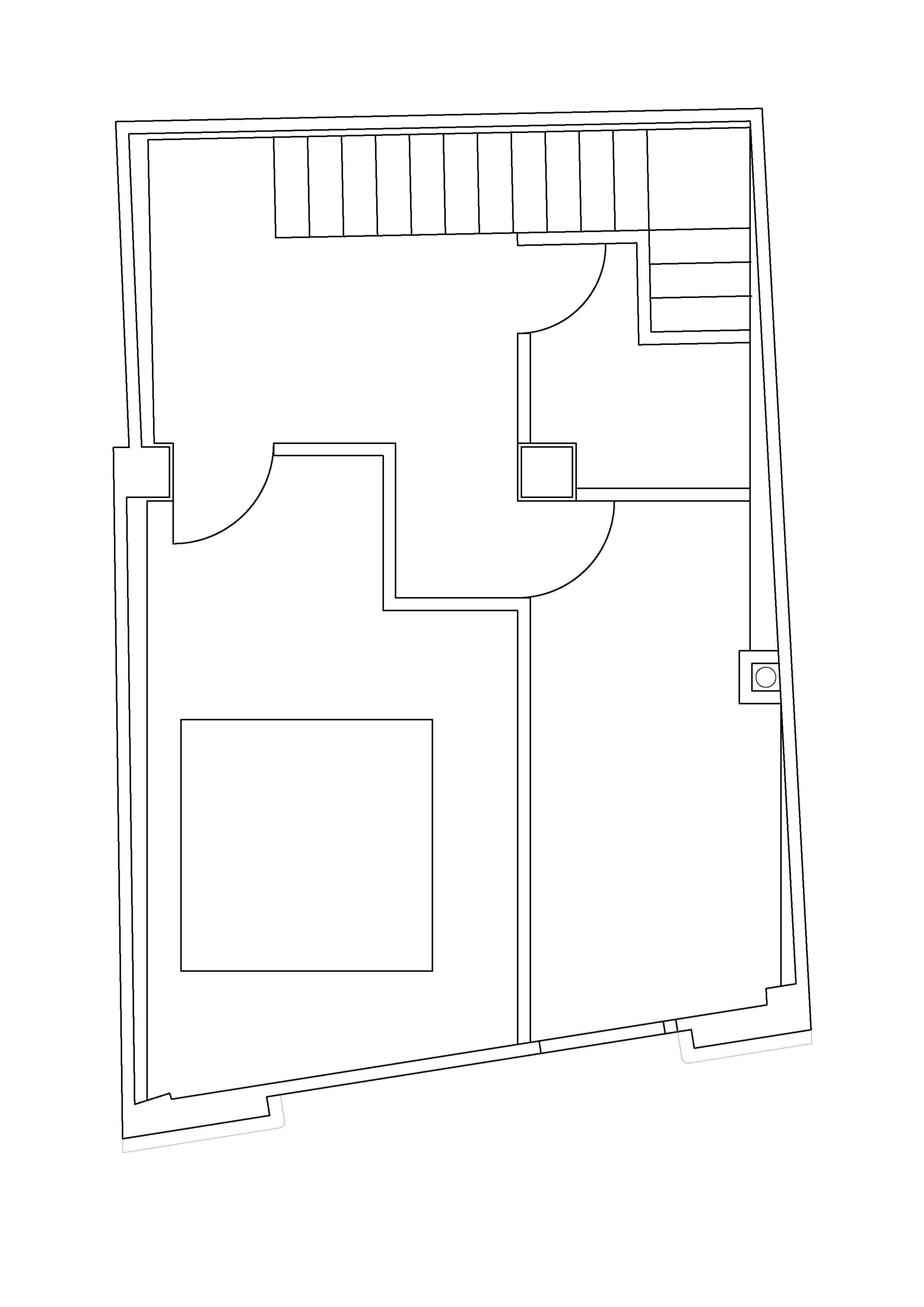
txoGor33 txoGor34 txoGor35

Objetivos planta 0:
   - Que el salón tuviera intimidad respecto a otros espacios
   - Cocina amplia y funcional, con mesa para comer cómodamente
   - Espacio lavadero-tendedero
   - Armario espacioso en la entrada
   - Un baño-aseo cómodo

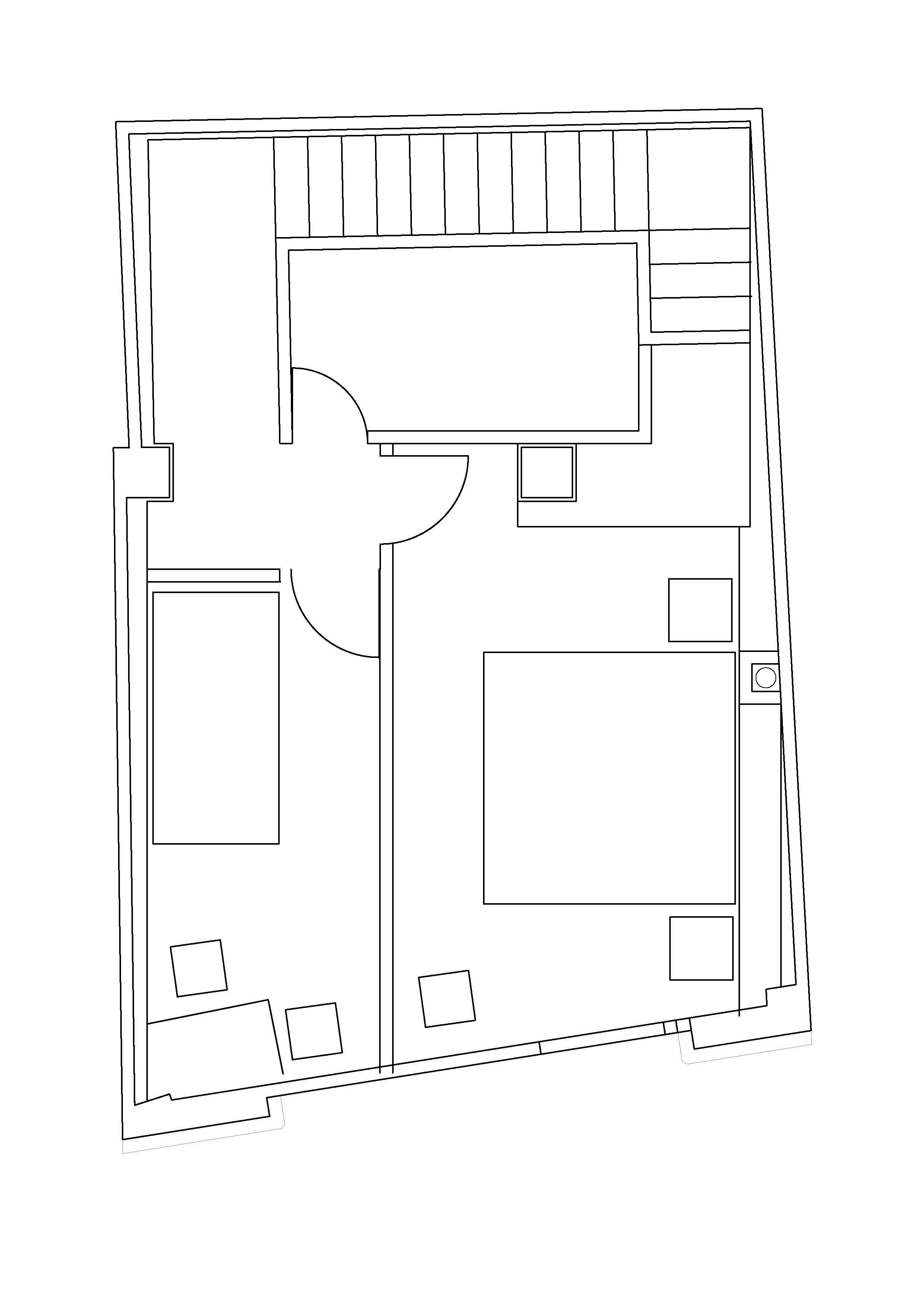
txoGor36 txoGor37

Objetivos planta 1:
   - Un dormitorio que disponga de cama de 2x2 m
   - Una zona de estar tipo cuarto para ordenador, televisión, videojuegos o equipo de música
   - Un cómodo baño con jacuzzi
   - Todo los espacios bien cerrados para su intimidad (nada de paredes de vidrio tipo pavés, ni nada translucido)

txoGor38 txoGor39 txoGor40 txoGor41